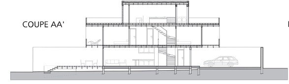
Voici un groupe de quatre maisons de plage, situées sur un terrain en bord de mer. La disposition des maisons juxtaposées sur des bandes de terrain longitudinales, génère une distribution optimale, avec une circulation de l'entrée dans la propriété depuis la route, vers le sable et la mer, et en supplément, une piscine à débord sur la façade maritime pour chaque maison.



